Visele iau forma casei tale!

Casa individuala P+E, sup.120 mp Chinteni

Acasa > Casa individuala P+E, sup.120 mp Chinteni

Casa individuala P+E, sup.120 mp Chinteni

NOU

/ Cluj, Chinteni

Recent Bath 3
Recent Bed 5

Descriere Print This Page Printeaza Proprietatea

Locatie : Chinteni, jud. Cluj.

  • NOU Casa individuala in suprafata de 120 mp la Pretul de 208.000 euro include TVA 21%.

Descriere: Terenul total al ambelor constructii atat casa individuala cat si casele cuplate are o suprafata de 1449 mp.

Stadiu finisat la exterior : zidarie caramida 25 cm+termoizolatie polistiren expandat 20 cm, tencuiala decorativa alba, elemente de caramida, tamplarie din pvc cu geam termopan maro, invelitoare tigla ceramica, pergola din lemn pe exterior.

Stadiu de semifinisare la interior: tencuit, gletuit, instalatii trase pe pozitii, sape, incalzire prin pardoseala, geamuri termopan.

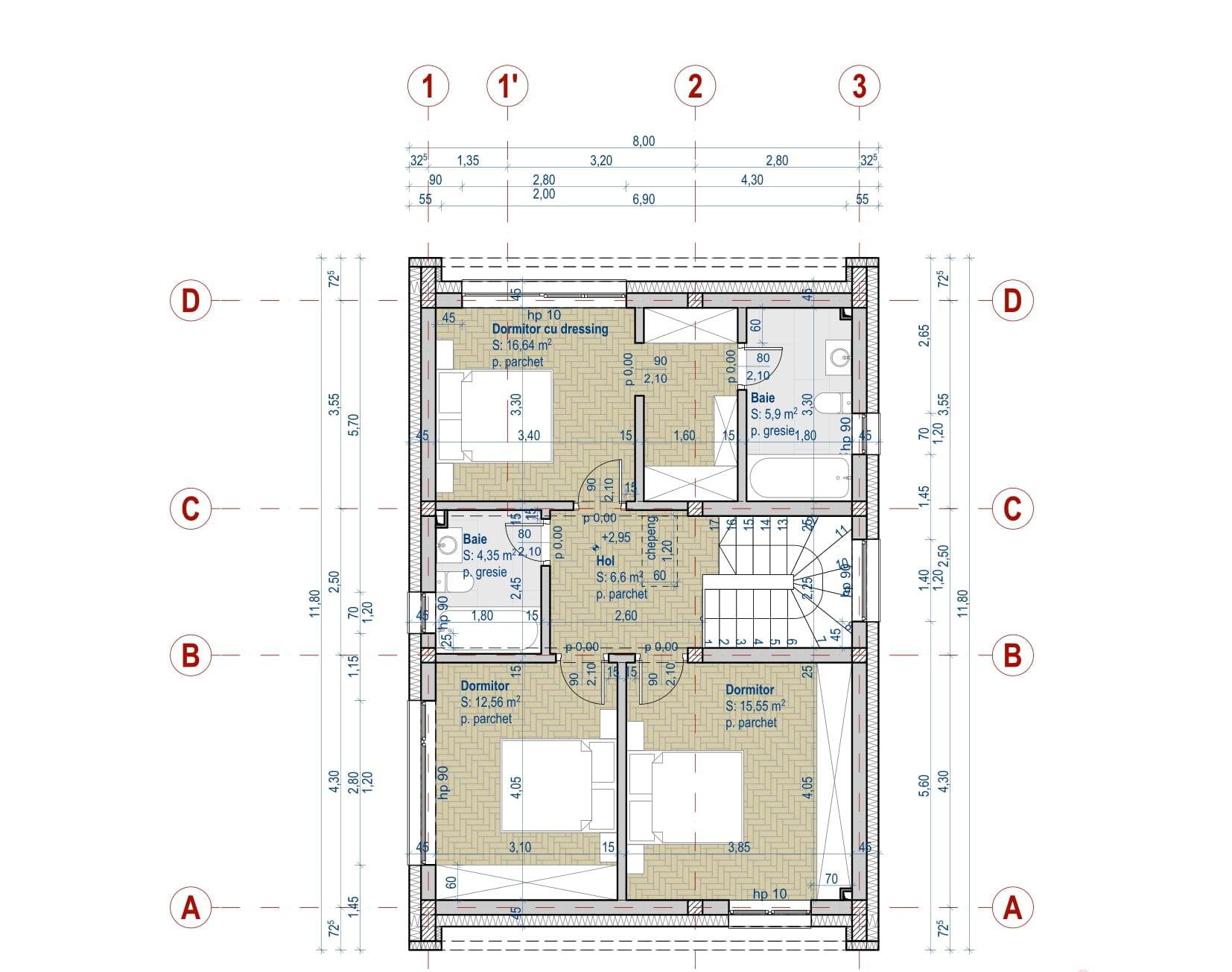
Compartimentare la parter astfel: hol 3.76 mp, baie 3.55 mp, birou/dormitor 11.35 mp, depozit 1.4 mp, living 27.62 mp, bucatarie 10.69 mp, terasa acces in casa 2,7 mp si terasa 29.14 mp; iar la etaj sunt 3 dormitoare, 2 bai si 1 hol. Dormitor principal cu dressing si baie 16.64 mp+5.90 mp.

  • NOU Casa cuplata prin garaj sup.124 mp+garaj 23 mp=147 mp la Pretul de 201.000 euro include TVA 21%.

Compartimentare la parter astfel: garaj 23 mp, hol 6.45 mp, baie 3.84 mp, birou/dormitor 11.22 mp, living 23.90 mp, bucatarie 8.96 mp si terasa 11.75 mp; iar la etaj sunt 3 dormitoare, 2 bai, 1 hol si 1 balcon 7.03 mp. Dormitor principal cu baie proprie 15.58 mp+5.99 mp.

Se intermediaza prin agentia Record Imobiliare comision 2%.

Găsiți-vă casa de vis

Agent Imobiliar Marin

Agent Imobiliar Marin

Agent de proprietate

Cerere de solicitare

Video de proprietate

about video

Proprietăți similare

Footer background image

Strada Sesul de Sus nr.184F, ap.2A, 2B parter

Floresti 407280

Jud. Cluj-Napoca, Romania

Interval oral

Luni - Vineri: 9:00 - 17:00
Sambata - Duminica : Inchis

Call Now Button
Open chat
1
Buna ziua
Pot sa va ajut cu ceva?
Powered by