Visele iau forma casei tale!

Inchiriere Spatiu comercial, 2 camere, terasa 23 mp, acces din terasa Apahida

Acasa > Inchiriere Spatiu comercial, 2 camere, terasa 23 mp, acces din terasa Apahida

Inchiriere Spatiu comercial, 2 camere, terasa 23 mp, acces din terasa Apahida

Inchiriere

/ Cluj, Apahida

Recent Bath 1
Recent Bed 2

Descriere Print This Page Printeaza Proprietatea

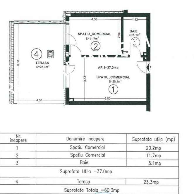
Spatiu comercial inscris in cartea funciara!

Locatie: Apahida, Ansamblul Estimo de pe str.Octavian Paler, bloc nou.

Parter cu acces direct din terasa dar si din casa scarii.

Se afla la prima inchiriere, peretii sunt zugraviti in lavabil alb, baia finisata, centrala termica proprie, incalzire prin pardoseala.

Pretabil pentru activitati de birou, proiectare, salon beauty, infrumusetare, magazin online.

Compus din 2 camere, baie si terasa: suprafata utila 37 mp astfel: 20,2 mp+11,7 mp+baia 5,1 mp si TERASA 23,3 mp.

Dispune de un loc de parcare.

Pret de inchiriere 500 euro/luna.

Se inchiriaza prin Agentia Record Imobiliare comision 50%.

Găsiți-vă casa de vis

Agent Imobiliar Marin

Agent Imobiliar Marin

Agent de proprietate

Cerere de solicitare

Video de proprietate

about video

Proprietăți similare

Footer background image

Strada Sesul de Sus nr.184F, ap.2A, 2B parter

Floresti 407280

Jud. Cluj-Napoca, Romania

Interval oral

Luni - Vineri: 9:00 - 17:00
Sambata - Duminica : Inchis

Call Now Button
Open chat
1
Buna ziua
Pot sa va ajut cu ceva?
Powered by